Sàn nấm là loại sàn bê tông cốt thép không sử dụng dầm, trong đó bản sàn được liên kết và truyền tải trực tiếp xuống các cột. Điểm đặc trưng của kết cấu này là phần mở rộng đầu cột có hình dạng giống cây nấm, giúp tăng khả năng chịu lực và phân tán tải trọng hiệu quả.
Trong mỗi công trình xây dựng, sàn là bộ phận chịu lực phức tạp, chiếm diện tích lớn và ảnh hưởng trực tiếp đến độ bền, công năng cũng như không gian kiến trúc.
Việc sử dụng sàn nấm giúp tối ưu chiều cao tầng, tạo không gian thông thoáng và linh hoạt trong bố trí mặt bằng, đặc biệt phù hợp với các công trình nhà cao tầng, văn phòng và biệt thự hiện đại.

Bản vẽ thép sàn nấm là tài liệu kỹ thuật quan trọng, thể hiện chi tiết cách bố trí cốt thép cho hệ sàn không dầm. Bản vẽ giúp đội ngũ thi công thực hiện đúng yêu cầu kỹ thuật, đồng thời hỗ trợ chủ đầu tư theo dõi, kiểm soát chất lượng và tiến độ thi công.
Nội dung bản vẽ sàn nấm thường bao gồm diện tích sàn để tính toán khối lượng thép và vật liệu cần sử dụng, mật độ thép trên mỗi mét vuông nhằm đảm bảo khả năng chịu tải và độ an toàn của công trình.
Bên cạnh đó, bản vẽ thể hiện rõ kích thước, số lượng và vị trí bố trí cốt thép tại từng khu vực, đặc biệt là vùng đầu cột nơi chịu lực tập trung lớn.
Ngoài ra, các thông số kỹ thuật như chiều dày sàn, mác bê tông, yêu cầu thi công và biện pháp kỹ thuật cũng được ghi chú đầy đủ. Vị trí cột và chi tiết liên kết giữa sàn và cột được thể hiện rõ ràng, giúp đảm bảo tính đồng bộ, chính xác và an toàn cho toàn bộ kết cấu sàn nấm.
Bố trí cốt thép trong sàn nấm là hạng mục đặc biệt quan trọng trong thiết kế và thi công kết cấu bê tông cốt thép. Sàn nấm là loại sàn không sử dụng dầm, được đặt trực tiếp lên hệ cột và mũ cột nhằm tăng khả năng chịu lực, phân bố tải trọng đều và tối ưu chiều cao không gian.
.jpg)
Việc bố trí thép đúng kỹ thuật sẽ giúp sàn làm việc hiệu quả, hạn chế nứt gãy và đảm bảo độ bền lâu dài cho công trình. Về nguyên tắc, cốt thép sàn nấm cần được bố trí theo hai phương vuông góc để sàn có khả năng chịu lực toàn diện.
Thép lớp dưới đóng vai trò chịu kéo, thường tập trung nhiều tại khu vực giữa nhịp nơi mô men uốn lớn. Thép lớp trên chịu nén và chịu mô men âm, được bố trí chủ yếu tại khu vực gần cột.
Tại các vị trí mũ cột, nơi sàn tiếp xúc trực tiếp với cột và chịu tải trọng tập trung lớn, cần tăng cường mật độ cốt thép để chống chọc thủng và giảm ứng suất cục bộ. Việc gia cường thép tại khu vực này giúp nâng cao khả năng chịu lực, đồng thời đảm bảo an toàn cho toàn bộ hệ sàn.
.png)
Ngoài ra, việc bố trí thép cần tuân thủ đúng hồ sơ thiết kế, đảm bảo khoảng cách, đường kính và lớp bảo vệ bê tông theo tiêu chuẩn kỹ thuật.
Thi công đúng nguyên tắc bố trí thép sàn nấm không chỉ giúp công trình vận hành ổn định mà còn góp phần nâng cao tuổi thọ và chất lượng tổng thể của kết cấu.
Trong lĩnh vực thiết kế và thi công nhà ở, đặc biệt là các công trình biệt thự, nhà phố cao cấp, sàn nấm đang ngày càng được ứng dụng rộng rãi nhờ ưu điểm vượt nhịp lớn và tối ưu không gian.
Thép sàn nấm là yếu tố then chốt quyết định khả năng chịu lực, độ an toàn và tuổi thọ công trình trong quá trình thi công xây dựng trọn gói.
Sàn nấm là dạng sàn bê tông cốt thép không dầm, trong đó tải trọng sàn được truyền trực tiếp xuống cột thông qua mũ cột. Do đặc thù kết cấu này, việc bố trí thép sàn nấm đúng kỹ thuật là yêu cầu bắt buộc trong mọi hồ sơ thiết kế kết cấu nhà ở.
Thép chịu lực chính được bố trí tại các khu vực chịu tải trọng lớn như mũ cột và giữa nhịp sàn. Do sàn nấm làm việc theo hai phương, hệ thép phải được sắp xếp theo cả hai hướng vuông góc nhằm đảm bảo khả năng chịu lực đồng đều.
.png)
Trong thi công sàn nấm, thép thường được chia thành hai lớp gồm lớp trên và lớp dưới, mỗi lớp đảm nhiệm một vai trò chịu lực khác nhau.
Lớp thép dưới có nhiệm vụ chịu mô men uốn dương phát sinh từ tải trọng sử dụng và tải trọng bản thân sàn. Thép được bố trí tập trung tại khu vực giữa nhịp, nơi xuất hiện lực kéo lớn nhất.
Đường kính và khoảng cách thép được tính toán dựa trên khẩu độ nhịp và tải trọng thiết kế, đảm bảo tiêu chuẩn trong thi công nhà bê tông cốt thép.
Sau khi lắp đặt thép lớp dưới, hệ con kê và chân chó được sử dụng để giữ đúng cao độ, tạo khoảng cách tiêu chuẩn giữa hai lớp thép và lớp bê tông bảo vệ. Đây là bước quan trọng trong quy trình thi công xây dựng nhà ở nhằm hạn chế nứt sàn và võng sàn sau này.
Tại các vị trí giao giữa cột và sàn, mô men âm gây lực kéo lớn ở phía trên bản sàn. Vì vậy, lớp thép trên cần được gia cường mạnh tại mũ cột và dọc mép sàn. Thép lớp trên thường có mật độ dày hơn, khoảng cách nhỏ hơn để đảm bảo khả năng chịu lực và chống nứt.
Trong thiết kế kết cấu biệt thự, thép mũ sàn được bố trí vuông góc, cắt và neo theo chiều dài tính toán, thường tại khoảng một phần tư chiều dài nhịp cạnh ngắn, giúp sàn làm việc ổn định và an toàn lâu dài.
Thép phân phối có đường kính nhỏ hơn thép chịu lực chính, không trực tiếp chịu tải trọng lớn nhưng đóng vai trò quan trọng trong việc phân tán lực và ổn định kết cấu.
.jpg)
Thông thường, thép chịu lực chính được bố trí theo phương nhịp ngắn, còn thép phân phối được đặt vuông góc theo phương nhịp dài.
Cách bố trí này giúp giữ cố định các thanh thép chính trong quá trình thi công xây nhà trọn gói, đồng thời hạn chế nứt bề mặt do co ngót bê tông.
Tại khu vực tiếp giáp giữa cột và sàn, cần bố trí thêm thép gia cường để chống hiện tượng chọc thủng và giảm ứng suất cục bộ. Ngoài ra, thép cũng được tăng cường tại mép sàn nhằm hạn chế biến dạng và nứt gãy trong quá trình sử dụng.
Hệ thép lưới quanh mũ cột có tác dụng phân tán lực cắt và mô men, bảo vệ kết cấu khỏi phá hoại cục bộ, đồng thời nâng cao độ bền và độ an toàn cho công trình.
Trong thiết kế kết cấu nhà ở và biệt thự, thép sử dụng cho sàn nấm cần được tính toán kỹ lưỡng nhằm đảm bảo khả năng chịu lực, độ an toàn và hiệu quả kinh tế trong quá trình thi công xây dựng trọn gói.
Về đường kính thép, thép sàn nấm thường sử dụng các loại từ D10 đến D16, tùy thuộc vào khẩu độ nhịp, tải trọng thiết kế và công năng sử dụng của công trình.
Đường kính thép càng lớn thì khả năng chịu lực càng cao, tuy nhiên cần được tính toán hợp lý để vừa đáp ứng yêu cầu kỹ thuật, vừa tối ưu chi phí vật liệu trong thi công nhà bê tông cốt thép.
.png)
Khoảng cách bố trí thép thường dao động từ 150 mm đến 250 mm, phụ thuộc vào tải trọng tác dụng và chiều dày sàn. Việc bố trí đúng khoảng cách giúp sàn làm việc đồng đều, hạn chế nứt và võng trong quá trình sử dụng lâu dài.
Chiều dài neo của thanh thép là yếu tố đặc biệt quan trọng trong thiết kế thi công sàn nấm. Thép cần được neo chắc chắn vào cột với chiều dài tối thiểu theo tiêu chuẩn để tránh hiện tượng tuột thép khi sàn chịu tải trọng lớn, đặc biệt tại các vị trí mũ cột.
Bố trí thép sàn nấm phải tuân thủ nghiêm ngặt các tiêu chuẩn xây dựng hiện hành như TCVN, ACI hoặc Eurocode nhằm đảm bảo an toàn kết cấu cho các công trình nhà phố, biệt thự và công trình cao tầng.
Trước tiên, kỹ sư kết cấu cần tính toán chính xác tải trọng tác dụng lên sàn, bao gồm tải trọng bản thân, tải trọng sử dụng và các tải trọng bổ sung khác. Từ đó xác định mô men uốn và lực cắt làm cơ sở cho việc lựa chọn đường kính và mật độ thép.
Tiếp theo, thép lớp dưới được bố trí tại khu vực giữa nhịp, nơi chịu mô men uốn dương lớn nhất. Lớp thép này đóng vai trò chịu lực kéo chính cho toàn bộ bản sàn.
.png)
Tại khu vực gần cột, thép lớp trên được bố trí với mật độ dày hơn để chịu mô men uốn âm phát sinh do tải trọng tập trung. Đây là khu vực cần đặc biệt chú trọng trong thi công xây nhà trọn gói, bởi nếu bố trí sai có thể dẫn đến nứt sàn hoặc phá hoại cục bộ.
Ngoài ra, tại mũ cột cần gia cường thêm các lớp thép nhằm chống lực cắt và hiện tượng chọc thủng sàn. Sau khi hoàn thiện việc lắp đặt, toàn bộ hệ thép phải được kiểm tra kỹ lưỡng về khoảng cách, vị trí và chiều dài neo để đảm bảo đúng theo hồ sơ thiết kế kết cấu.
Cuối cùng, thép cần được bảo vệ bằng lớp bê tông đạt chiều dày tiêu chuẩn nhằm hạn chế ăn mòn, tăng tuổi thọ kết cấu và đảm bảo độ bền vững lâu dài cho công trình.
Trong thiết kế kết cấu bê tông cốt thép, bản vẽ bố trí thép sàn nấm đóng vai trò then chốt, quyết định trực tiếp đến khả năng chịu lực, độ an toàn và hiệu quả kinh tế của công trình.
Việc triển khai bản vẽ cần tuân thủ nghiêm ngặt các tiêu chuẩn kỹ thuật, đồng thời phù hợp với điều kiện thi công thực tế của từng dự án nhà phố, biệt thự, công trình cao tầng.
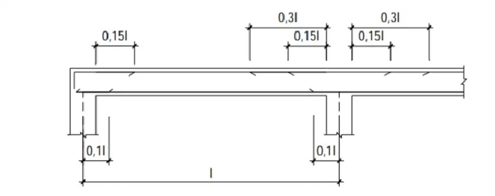
Đối với bản sàn nấm chịu tải trọng phân bố đều, việc bố trí và cắt cốt thép có thể áp dụng theo nguyên tắc kỹ thuật cơ bản nhằm đảm bảo khả năng làm việc hợp lý của kết cấu.
Cụ thể, cốt thép lớp trên tại gối giữa được bố trí 100% trong phạm vi 0.15 lần chiều dài nhịp, trong đó 50% số thép được kéo dài đến khoảng 0.3 lần chiều dài nhịp.
.png)
Đối với cốt thép lớp dưới, 100% thép được bố trí tại khu vực giữa nhịp để chịu mô men uốn dương, đồng thời khoảng 40% số thanh được kéo vào gối tựa nhằm tăng khả năng phân phối lực.
Cách bố trí này thường được áp dụng phổ biến trong thiết kế thi công sàn nấm, giúp tối ưu lượng thép sử dụng mà vẫn đảm bảo yêu cầu chịu lực và độ bền lâu dài cho công trình.
Tại khu vực mũ cột và bản đầu cột, cốt thép cần được gia cường hợp lý để chống lại mô men âm và lực cắt tập trung. Bản vẽ bố trí thép tại đây phải thể hiện rõ vị trí, số lượng và chiều dài neo của từng thanh thép nhằm đảm bảo khả năng chống đâm thủng sàn.
Trong trường hợp sàn không bố trí mũ cột hoặc bản đầu cột mà khả năng chống đâm thủng không đạt yêu cầu theo tính toán, bắt buộc phải bổ sung cốt thép chịu cắt hoặc giải pháp gia cường phù hợp.
.png)
Đây là nội dung đặc biệt quan trọng trong thi công xây dựng trọn gói, ảnh hưởng trực tiếp đến độ an toàn kết cấu khi công trình đi vào sử dụng.
Việc lập bản vẽ thép sàn nấm chính xác không chỉ giúp nâng cao chất lượng thi công mà còn tối ưu chi phí đầu tư, hạn chế phát sinh và rủi ro kỹ thuật trong quá trình xây dựng.
A&G Việt Nam khuyến nghị chủ đầu tư và đơn vị thi công luôn tham khảo ý kiến của kỹ sư kết cấu giàu kinh nghiệm để đảm bảo phương án thiết kế phù hợp với thực tế, đạt hiệu quả kỹ thuật và kinh tế lâu dài cho công trình.
--------------------------------------------------
CÔNG TY CỔ PHẦN TƯ VẤN KIẾN TRÚC VÀ XÂY DỰNG A&G VIỆT NAM
Động thổ xây nhà là một sự kiện quan trọng, không chỉ liên quan đến phong thủy mà còn ảnh hưởng trực tiếp đến cuộc sống lâu dài của gia chủ. Tuy nhiên, không phải ai cũng hiểu rõ những điều kiêng kỵ cần lưu ý để tránh rước xui xẻo vào tổ ấm. Trong bài viết này, A&G Việt Nam sẽ chia sẻ 5 điều kiêng kỵ khi động thổ xây nhà mà bạn tuyệt đối không nên bỏ qua. Cùng tìm hiểu để chuẩn bị tốt nhất, xây dựng một ngôi nhà trọn vẹn, bình an và hạnh phúc!
Bê tông là vật liệu xây dựng chủ đạo, quyết định độ bền và thẩm mỹ của công trình. Tuy nhiên, hiện tượng nứt bê tông vẫn thường xảy ra, ảnh hưởng đến chất lượng và tuổi thọ công trình. Hãy cùng A&G Việt Nam tìm hiểu những giải pháp chống nứt bê tông hiệu quả ngay sau đây.
Phòng bếp không chỉ là nơi nấu nướng mà còn là "trái tim" của ngôi nhà nơi kết nối các thành viên qua những bữa ăn ấm áp. Với những căn nhà ống mặt tiền 4m, việc thiết kế phòng bếp sao cho vừa đẹp, hiện đại lại thoáng đãng là một thách thức không nhỏ. Trong bài viết này, A&G Việt Nam giới thiệu đến bạn mẫu phòng bếp nhà ống 4m ấn tượng, giúp tối ưu không gian và nâng tầm thẩm mỹ cho tổ ấm của bạn.
0981478866